top of page

MFH mit Büronutzung

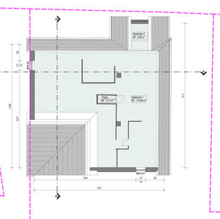
Für die Planung einer Umnutzung wurde ein Mehrfamilienhaus vermessen. Im Erdgeschoss befindet sich eine Wohnung und zwei Büroeinheiten. Im Obergeschoss sind zwei weitere Wohneinheiten untergebracht.

bottom of page